Получить подборку
addressagentbrickscarceilingcitydcdistrictdolldooreurfbfloorfloorsgoogle-plushouseinstagramkeyliftlistmarkermessagemetronaturenewbuidingnewbuiltSE_icons_Noparkingphoneplanrenovrouterubsearchshopstairsstar-emptystar-fillsummsurveilancesymbol-defstagthumbtwvkwalkwallsSE_icons_windowyoutubelist-2

Продажа квартиры, площадь 151.9 кв.м., 5 этаж, ЖК Шоколад, Тетеринский пер, 18стр2

Номер объекта 557886
МЕСТОПОЛОЖЕНИЕ На карте
Адрес
Тетеринский пер, 18стр2
Город
Москва г
Линия станции метро
Таганско-Краснопресненская
До метро пешком
5 мин.
Район
Округ
ЦАО
!Характеристики
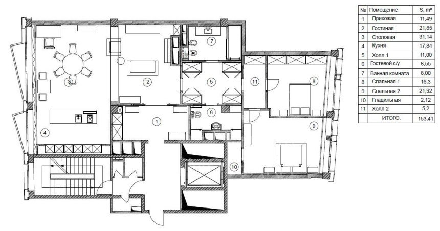
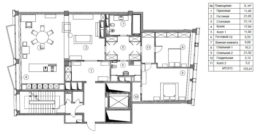
Общая площадь
151.9 кв.м.
Площадь кухни
18 кв.м.
Цена
175 000 000 руб.
Цена за кв.м.
1 152 073 руб.
Тип
продажа
Категория
квартира
Количество комнат
3
Свободная планировка
нет
Этаж
5 из 7
Ремонт
дизайнерский
Высота потолков
3.20
Вид из окон
двор
Паркинг
подземный
Название ЖК
Новостройка
нет
Год постройки
2011
Тип дома
монолитный
Этажей в доме
7

Жилой комплекс Шоколад расположен в Таганском районе Москвы, в Тетеринском переулке. Комплекс включает в себя два здания, построенных по проекту известного столичного архитектора Юрия Григоряна. В обоих корпусах ЖК насчитывается 37 квартир, площадь которых варьируется от 150 до 250 кв.м. Планировка квартир свободная, что дает возможность для реализации любых, даже самых смелых и нестандартных дизайнерских идей. Верхние этажи жилого комплекса отведены под двухуровневые пентхаусы, которые имеют выходы на эксплуатируемую кровлю. Квартиры в жилом комплексе Шоколад имеют прекрасные видовые характеристики.

Оригинальный облик фасадов зданий ЖК Шоколад обусловлен стильной отделкой - облицовка выполнена из кирпича ручной формовки, натурального камня.

Внутренняя инфраструктура жилого комплекса Шоколад включает в себя несколько благоустроенных общественных зон. Оба корпуса ЖК объединены стилобатом, оформленным элементами витражного остекления.

Жилой комплекс расположен в удобной транспортной доступности от Садового, Третьего транспортного кольца, вблизи от объектов инфраструктуры центра Москвы - магазинов, ресторанов, фитнес-клубов, общеобразовательных и культурных учреждений.

Развернуть Свернуть

Описание объекта

ЭКСКЛЮЗИВ! Продажа стильной, просторной, очень светлой квартиры в клубном доме ЖК «Шоколад» класса «Де Люкс». Квартира с качественной отделкой в классическом стиле полностью меблирована. В гостиной расположен дровяной камин.  Корпус В (Белый шоколад).

Комнаты: гостиная, кухня-столовая площадью 70 м., спальня, кабинет (можно переоборудовать во вторую спальню), 2 санузла в мраморе, гардеробные, 2 балкона. Панорамное остекление, двойные стеклопакеты из дерева, потолки 3.2 м. В квартире установлена хорошая система вентиляции и кондиционирования.

ЖК «Шоколад» оснащен современными системами безопасности и пожаротушения. Благодаря наличию питьевого водопровода, воду из-под крана можно пить. Шикарный интерьер вестибюля. К услугам автовладельцев пятиуровневый гараж-стоянка, откуда можно, не выходя на улицу, подняться к себе в квартиру. Машиноместо включено в стоимость квартиры. Круглосуточная охрана. Благоустроенный внутренний двор, японский сад, ландшафтный дизайн. Фасад дома облицован юрским мрамором белого цвета.

Квартира юридически свободна. Оперативный показ, ключи на руках.

Участник ассоциации  Area.
Развернуть Свернуть

На карте