Получить подборку
addressagentbrickscarceilingcitydcdistrictdolldooreurfbfloorfloorsgoogle-plushouseinstagramkeyliftlistmarkermessagemetronaturenewbuidingnewbuiltSE_icons_Noparkingphoneplanrenovrouterubsearchshopstairsstar-emptystar-fillsummsurveilancesymbol-defstagthumbtwvkwalkwallsSE_icons_windowyoutubelist-2

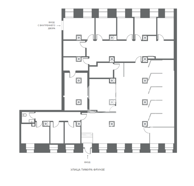
Аренда помещения свободного назначения, площадь 421.75 кв.м., 1 этаж, Тимура Фрунзе ул, 11к2, район Хамовники

Название ТЦ/БЦ
Мамонтов
Год постройки
2003
Тип дома
бизнес-центр
Общее количество этажей в доме
6
Охрана/сигнализация
да
Описание объекта

Аренда офисного помещения общей площадью 421.75 кв.м на 1 этаже бизнес-центра "Мамонтов", расположенного на территории делового квартала «Красная Роза» в престижном районе Хамовники

В помещении организованы два отдельных входа: с улицы Тимура Фрунзе и с внутреннего двора. Помещение с отделкой, смешанная планировка

Удобная транспортная доступность к Садовому кольцу, улице Большая Пироговская и Комсомольскому проспекту, 5 минут пешком от станции метро «Парк Культуры»

Для резидентов квартала доступна вся инфраструктура: более 25 ресторанов и кафе, фуд-маркет, салоны флористики, фитнес-центр,

студия танцев, автомойка

Охраняемая территория, вместительный наземный и подземный

Развернуть Свернуть

Мамонтов
Добавить в избранное Убрать из избранного
  • Аренда
  • Офис
  • 787.25 м2
  • 6 этаж
Добавить в избранное Убрать из избранного
  • Аренда
  • Офис
  • 494.55 м2
  • 1 этаж
Похожие объекты
Добавить в избранное Убрать из избранного
  • Аренда
  • Офис
  • 366 м2
  • 1 этаж
Добавить в избранное Убрать из избранного
  • Аренда
  • Офис
  • 140 м2
  • 1 этаж
Добавить в избранное Убрать из избранного
  • Аренда
  • Офис
  • 269.4 м2
  • 5 этаж
Добавить в избранное Убрать из избранного
  • Аренда
  • ПСН
  • 148.2 м2
  • 1 этаж
Добавить в избранное Убрать из избранного
  • Аренда
  • ПСН
  • 117 м2
  • 1 этаж
Добавить в избранное Убрать из избранного
  • Аренда
  • Офис
  • 260 м2
  • 4 этаж
Добавить в избранное Убрать из избранного
  • Аренда
  • Офис
  • 83 м2
  • 6 этаж
Добавить в избранное Убрать из избранного
  • Аренда
  • Торговая площадь
  • 384.11 м2
  • 1 этаж
Добавить в избранное Убрать из избранного
  • Аренда
  • Офис
  • 750 м2
  • 9 этаж
Добавить в избранное Убрать из избранного
  • Аренда
  • ПСН
  • 212 м2
  • 2 этаж
Добавить в избранное Убрать из избранного
  • Аренда
  • ОСЗ / Особняк
  • 1045.46 м2
  • 1 этаж
Добавить в избранное Убрать из избранного
  • Аренда
  • Офис
  • 404 м2
  • 1 этаж
Добавить в избранное Убрать из избранного
  • Аренда
  • Торговая площадь
  • 120 м2
  • 1 этаж
Добавить в избранное Убрать из избранного
  • Аренда
  • Торговая площадь
  • 420 м2
  • 1 этаж
Добавить в избранное Убрать из избранного
  • Аренда
  • ОСЗ / Особняк
  • 669 м2
  • 1 этаж
Добавить в избранное Убрать из избранного
  • Аренда
  • Офис
  • 297 м2
  • 3 этаж
Добавить в избранное Убрать из избранного
  • Аренда
  • Офис
  • 261 м2
  • 3 этаж
Добавить в избранное Убрать из избранного
  • Аренда
  • Торговая площадь
  • 167.97 м2
  • -1 этаж
Добавить в избранное Убрать из избранного
  • Аренда
  • Офис
  • 269 м2
  • 4 этаж
Добавить в избранное Убрать из избранного
  • Аренда
  • ПСН
  • 491.1 м2
  • 1 этаж
Добавить в избранное Убрать из избранного
  • Аренда
  • ПСН
  • 142.1 м2
  • 4 этаж
Добавить в избранное Убрать из избранного
  • Аренда
  • Офис
  • 734.5 м2
  • 7 этаж
Добавить в избранное Убрать из избранного
  • Аренда
  • Офис
  • 734.5 м2
  • 6 этаж
Добавить в избранное Убрать из избранного
  • Аренда
  • Офис
  • 240 м2
  • 4 этаж
Добавить в избранное Убрать из избранного
  • Аренда
  • Офис
  • 112 м2
  • 3 этаж
Добавить в избранное Убрать из избранного
  • Аренда
  • Офис
  • 269 м2
  • 3 этаж
Добавить в избранное Убрать из избранного
  • Аренда
  • Торговая площадь
  • 389 м2
  • 1 этаж
Добавить в избранное Убрать из избранного
  • Аренда
  • Офис
  • 206 м2
  • 1 этаж
Добавить в избранное Убрать из избранного
  • Аренда
  • Офис
  • 115 м2
  • 2 этаж
Добавить в избранное Убрать из избранного
  • Аренда
  • Офис
  • 1200 м2
  • 2 этаж
Добавить в избранное Убрать из избранного
  • Аренда
  • ОСЗ / Особняк
  • 753 м2
  • 1 этаж
Добавить в избранное Убрать из избранного
  • Аренда
  • Офис
  • 140 м2
  • 1 этаж
Добавить в избранное Убрать из избранного
  • Аренда
  • Торговая площадь
  • 242 м2
  • 1 этаж
Добавить в избранное Убрать из избранного
  • Аренда
  • Офис
  • 130 м2
  • 2 этаж
Добавить в избранное Убрать из избранного
  • Аренда
  • Офис
  • 400.9 м2
  • 4 этаж
Добавить в избранное Убрать из избранного
  • Аренда
  • Офис
  • 315.84 м2
  • 4 этаж
Добавить в избранное Убрать из избранного
  • Аренда
  • Офис
  • 241.92 м2
  • 4 этаж
Добавить в избранное Убрать из избранного
  • Аренда
  • Офис
  • 230.05 м2
  • 4 этаж
Добавить в избранное Убрать из избранного
  • Аренда
  • Офис
  • 168 м2
  • 3 этаж
Добавить в избранное Убрать из избранного
  • Аренда
  • Офис
  • 151.31 м2
  • 3 этаж
На карте