Получить подборку
addressagentbrickscarceilingcitydcdistrictdolldooreurfbfloorfloorsgoogle-plushouseinstagramkeyliftlistmarkermessagemetronaturenewbuidingnewbuiltSE_icons_Noparkingphoneplanrenovrouterubsearchshopstairsstar-emptystar-fillsummsurveilancesymbol-defstagthumbtwvkwalkwallsSE_icons_windowyoutubelist-2

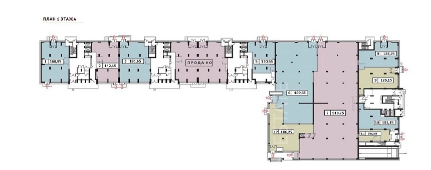
Продажа торговой площади, площадь 181.65 кв.м., 1 этаж, Вавилова ул, 27 корп. А, район Академический

Тип дома
жилой дом (новостройка)
Общее количество этажей в доме
21
Описание объекта

Продажа помещения площадью 181,65 м2 на 1 этаже ЖК «Вавилов Дом» с входами со стороны улицы Вавилова, которое подойдет под магазин, кафе, кондитерскую, отделения банков, аптеки, салоны красоты, компании сферы услуг и бытовые службы. Рядом расположены школы, детские сады и магазины. В 15 минутах ходьбы находится метро Академическая и в 20 минутах от метро Ленинский проспект и станции МЦК Площадь Гагарина. Жилой комплекс состоит из двух монолитных 21-этажных корпусов, объединенных одноэтажным стилобатом и двухуровневым подземным паркингом на 280 машиномест. Вентилируемые фасады облицованы испанской керамической плиткой Faveton, устойчивой к повреждениям и перепадам температур. Высота потолков 6 метров. В лобби установлены панорамные окна. Территория комплекса будет огорожена, внутри планируется обустройство спортивных площадок, зон отдыха и детских городков. Местоположение удобно близостью центральной части Москвы: до ТТК менее 2 км, до Садового кольца – 5 км. Развернуть Свернуть

Похожие объекты
Добавить в избранное Убрать из избранного
  • Продажа
  • Торговая площадь
  • 264.5 м2
  • 1 этаж
Добавить в избранное Убрать из избранного
  • Продажа
  • Торговая площадь
  • 186.25 м2
  • 1 этаж
На карте