Получить подборку
addressagentbrickscarceilingcitydcdistrictdolldooreurfbfloorfloorsgoogle-plushouseinstagramkeyliftlistmarkermessagemetronaturenewbuidingnewbuiltSE_icons_Noparkingphoneplanrenovrouterubsearchshopstairsstar-emptystar-fillsummsurveilancesymbol-defstagthumbtwvkwalkwallsSE_icons_windowyoutubelist-2

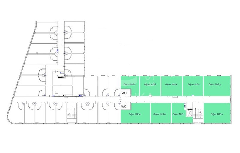
Аренда офиса, площадь 337.2 кв.м., 3 этаж, А-105 40-й километр, 3

Тип дома
административное здание
Общее количество этажей в доме
4
Охрана/сигнализация
да
Описание объекта

Аренда офиса на 3 этаже. Общая площадь 337,2 м2, возможно деление. Объект расположен в Мос. области г. Домодедово по адресу: 40-й км, А-105 стр. 3 . От метро Домодедовская 15 минут транспортом. Отдельный вход. Высота потолков 2,7 м. Помещение с отделкой. Витражное остекление. Пожарная сигнализация. Приточно-вытяжная вентиляция, выведены все коммуникации. Интернет, телефония. Охраняемая территория, паркинг на 150 м/м. Пост охраны. Лифт. Развитая инфраструктура комплекса: магазины, аптеки, банк, салон красоты, СПА, отель, рестораны и кафе, офисный центр и супермаркет. Удобная транспортная развязка: 18,5 км до МКАД, 3 км до аэропорта "Домодедово". Высокий транспортный трафик. Перспективный район.

В ставку аренды все включено, коммунальные отдельно.
Развернуть Свернуть

Похожие объекты
Добавить в избранное Убрать из избранного
  • Аренда
  • Торговая площадь
  • 164.9 м2
  • 1 этаж
Добавить в избранное Убрать из избранного
  • Аренда
  • ПСН
  • 82.6 м2
  • 1 этаж
Добавить в избранное Убрать из избранного
  • Аренда
  • Офис
  • 390.7 м2
  • 4 этаж
Добавить в избранное Убрать из избранного
  • Аренда
  • ПСН
  • 118.2 м2
  • 1 этаж
Добавить в избранное Убрать из избранного
  • Аренда
  • ПСН
  • 110.6 м2
  • 1 этаж
Добавить в избранное Убрать из избранного
  • Аренда
  • ПСН
  • 354 м2
  • 1 этаж
Добавить в избранное Убрать из избранного
  • Аренда
  • ПСН
  • 582.8 м2
  • 1 этаж
Добавить в избранное Убрать из избранного
  • Аренда
  • ПСН
  • 252 м2
  • -1 этаж
На карте