Получить подборку
addressagentbrickscarceilingcitydcdistrictdolldooreurfbfloorfloorsgoogle-plushouseinstagramkeyliftlistmarkermessagemetronaturenewbuidingnewbuiltSE_icons_Noparkingphoneplanrenovrouterubsearchshopstairsstar-emptystar-fillsummsurveilancesymbol-defstagthumbtwvkwalkwallsSE_icons_windowyoutubelist-2

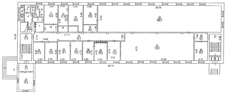
Аренда торговой площади, площадь 566.7 кв.м., 1 этаж, Фестивальная ул, 39А стр. 1, район Левобережный

Год постройки
1965
Тип дома
ОСЗ / особняк
Общее количество этажей в доме
3
Описание объекта

Предлагается в аренду ПСН общей площадью 566,7 м.кв. на 1 этаже в отдельно стоящее здание, который находится по адресу Москва, улица Фестивальная ул., 39А стр. 1 в САО административном округе Москвы. Всего несколько минут от метро до здания. Офис свободной планировки и требует отделки. Вокруг много мест общественного питания для сотрудников и руководства.

На карте