Получить подборку
addressagentbrickscarceilingcitydcdistrictdolldooreurfbfloorfloorsgoogle-plushouseinstagramkeyliftlistmarkermessagemetronaturenewbuidingnewbuiltSE_icons_Noparkingphoneplanrenovrouterubsearchshopstairsstar-emptystar-fillsummsurveilancesymbol-defstagthumbtwvkwalkwallsSE_icons_windowyoutubelist-2

Аренда офиса, площадь 257 кв.м., 10 этаж, Снежная ул, 26, район Свиблово

Название ТЦ/БЦ
Снежная 26
Тип дома
бизнес-центр
Общее количество этажей в доме
14
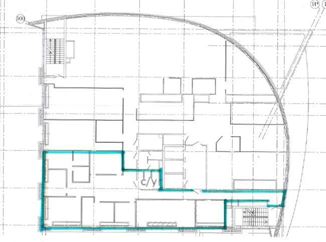
Описание объекта

Аренда офисного помещения. Бизнес-центр «Снежная, 26» расположен в столичном районе Свиблово (СВАО). Здание соответствует характеристикам коммерческой недвижимости класса «В+». Доехать до улицы Снежная можно по Енисейской улице и проезду Серебрякова, которые выходят на Ярославское шоссе и проспект Мира. Расстояние до МКАД – 5,5 км, до ТТК – 8 км. До метро Свиблово 3 минуты пешком. Рядом с ней находится автобусная остановка.

Офисное помещение 257 м2 – 10 этаж.

Ставка аренды составляет: 25 000 руб. за 1 кв.м/год с учетом НДС эксплуатационных услуг.

Отдельно оплачивается: свет, вода, отопление, интернет, телефония, уборка.

Помещения предоставляются с отделкой, за выездом арендатора.

Обеспечительный депозит в размере 1 месяца арендной платы.

Стоимость парковочного места: 7 000 рублей в месяц с учетом НДС.
Развернуть Свернуть

Снежная 26
Добавить в избранное Убрать из избранного
  • Аренда
  • Торговая площадь
  • 174 м2
  • 3 этаж
Похожие объекты
Добавить в избранное Убрать из избранного
  • Аренда
  • Торговая площадь
  • 1542 м2
  • 1 этаж
На карте