Получить подборку
addressagentbrickscarceilingcitydcdistrictdolldooreurfbfloorfloorsgoogle-plushouseinstagramkeyliftlistmarkermessagemetronaturenewbuidingnewbuiltSE_icons_Noparkingphoneplanrenovrouterubsearchshopstairsstar-emptystar-fillsummsurveilancesymbol-defstagthumbtwvkwalkwallsSE_icons_windowyoutubelist-2

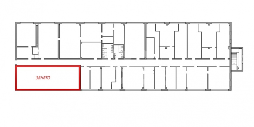
Аренда офиса, площадь 928.7 кв.м., 2 этаж, 3-й Нижнелихоборский проезд, 1Астр6, район Тимирязевский

Год постройки
1984
Тип дома
административное здание
Общее количество этажей в доме
2
Описание объекта

В Административном офисном здании предлагается помещение под офис общей площадью 928,7 кв.м с отделкой и коммуникациями, соответствующими классу "В".

В офисе выполнен качественный ремонт, установлены системы приточно-вытяжной вентиляции и кондиционирования с возможностью индивидуального управления температурой в каждом помещении. Офис обеспечен установками автоматической противопожарной защиты. ​

Офисный блок расположен на 2 этаже здания.

Планировка помещения кабинетная. В каждом кабинете имеются большие окна. Все очень рационально организовано: просторные кабинеты для работы сотрудников, кухня-столовая с техникой, переговорная комната, серверная комната, 2 санузла. Также в офисе отдельно выделена VIP-зона для руководства. Собственная столовая находится на 1-м этаже бизнес-центра.



Арендная ставка включает в себя эксплуатационные расходы, коммунальные платежи – по счетчикам

На территории имеется наземный паркинг (3 000 руб. за м/м)

Провайдеры: Мастертел, NetByNet

Предоставляется юр. адрес

Офис свободен с 01.02.2022 г.
Развернуть Свернуть

На карте