Получить подборку
addressagentbrickscarceilingcitydcdistrictdolldooreurfbfloorfloorsgoogle-plushouseinstagramkeyliftlistmarkermessagemetronaturenewbuidingnewbuiltSE_icons_Noparkingphoneplanrenovrouterubsearchshopstairsstar-emptystar-fillsummsurveilancesymbol-defstagthumbtwvkwalkwallsSE_icons_windowyoutubelist-2

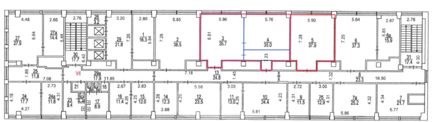
Аренда офиса, площадь 108.6 кв.м., 5 этаж, Ленинградский пр-кт, 37к3, район Хорошёвский

Название ТЦ/БЦ
Год постройки
1964
Тип дома
бизнес-центр
Общее количество этажей в доме
12
Охрана/сигнализация
да

«Авиатор» - деловой центр класса «С», расположенный на севере Москвы, в пешей доступности от станций метро «Динамо» и «Аэропорт», на первой линии домов Ленинградского проспекта.

Деловой центр занимает 12-здание, ранее принадлежавшее гостинице «Аэрофлот». Здание было капитально отремонтировано, в рамках проведенных работ обновлены инженерные и технические системы. В БЦ функционируют системы кондиционирования, пожаротушения, вентиляции, а также несколько лифтов. Для парковки транспорта предусмотрена наземная стоянка на 65 автомобилей.

В деловом центре «Авиатор» предлагаются офисные помещения удобной кабинетной планировки, площадью от 15 до 160 м2. Во всех помещениях выполнена отделка. Высота потолков - 3 м.

На территории делового центра работает зона ресепшен, есть кафе, ресторан. В пешей доступности – несколько торговых центров, магазины, банковские отделения, гостиница.
Развернуть Свернуть

Описание объекта

Аренда офиса общей площадью 108,6 кв.м на 5 этаже делового центра "Авиатор" в пешей доступности от станций метро "Динамо" и "Петровский Парк"

Офис с отделкой в светлых тонах

В ставку аренды включено: гостевая парковка 30 мин; э/энергия,

вода, отопление, операционные расходы, безопасность.

Отдельная плата: парковка 8 700 руб. включая НДС за 1 м/м в мес, интернет

Деловой центр «Авиатор» - 12-этажный бизнес-центр класса «С», расположенный в бывшем здании гостиницы «Аэрофлот» на первой линии Ленинградского проспекта. После капитального ремонта здание было оснащено системами приточно-вытяжной вентиляции, местного кондиционирования и спринклерного пожаротушения.

В центральном холле на первом этаже находится зона ресепшн, на объекте действует пропускная система доступа, организован пункт охраны, также ведется круглосуточное видеонаблюдение. Сообщение между этажами обеспечивается тремя лифтами. Наземная парковка рассчитана на 70 машиномест. В здании работают кафе и ресторан, рядом расположены торговые центры «Палладиум», «Авиасити» и «Старт», гостиница «Аэрополис», отделения банков

Развернуть Свернуть

ДЦ Авиатор
Добавить в избранное Убрать из избранного
  • Аренда
  • Офис
  • 70.7 м2
  • 5 этаж
Похожие объекты
Добавить в избранное Убрать из избранного
  • Аренда
  • Торговая площадь
  • 105.3 м2
  • 1 этаж
Добавить в избранное Убрать из избранного
  • Аренда
  • Офис
  • 420.4 м2
  • 1 этаж
Добавить в избранное Убрать из избранного
  • Аренда
  • Офис
  • 476 м2
  • 6 этаж
Добавить в избранное Убрать из избранного
  • Аренда
  • Офис
  • 918 м2
  • 6 этаж
Добавить в избранное Убрать из избранного
  • Аренда
  • Офис
  • 647 м2
  • 3 этаж
Добавить в избранное Убрать из избранного
  • Аренда
  • Офис
  • 156 м2
  • 2 этаж
Добавить в избранное Убрать из избранного
  • Аренда
  • Торговая площадь
  • 202 м2
  • 1 этаж
Добавить в избранное Убрать из избранного
  • Аренда
  • Офис
  • 1950 м2
  • 4 этаж
Добавить в избранное Убрать из избранного
  • Аренда
  • Офис
  • 1300 м2
  • 3 этаж
Добавить в избранное Убрать из избранного
  • Аренда
  • Офис
  • 650 м2
  • 2 этаж
Добавить в избранное Убрать из избранного
  • Аренда
  • Офис
  • 604 м2
  • 2 этаж
Добавить в избранное Убрать из избранного
  • Аренда
  • Офис
  • 239 м2
  • 1 этаж
Добавить в избранное Убрать из избранного
  • Аренда
  • Офис
  • 643.7 м2
  • 1 этаж
Добавить в избранное Убрать из избранного
  • Аренда
  • Офис
  • 300 м2
  • 3 этаж
Добавить в избранное Убрать из избранного
  • Аренда
  • Офис
  • 330 м2
  • 1 этаж
Добавить в избранное Убрать из избранного
  • Аренда
  • Офис
  • 335 м2
  • 2 этаж
На карте