Получить подборку
addressagentbrickscarceilingcitydcdistrictdolldooreurfbfloorfloorsgoogle-plushouseinstagramkeyliftlistmarkermessagemetronaturenewbuidingnewbuiltSE_icons_Noparkingphoneplanrenovrouterubsearchshopstairsstar-emptystar-fillsummsurveilancesymbol-defstagthumbtwvkwalkwallsSE_icons_windowyoutubelist-2

Аренда торговой площади, площадь 142 кв.м., 1 этаж, Мира пр-кт, 102к1, район Алексеевский

Название ТЦ/БЦ
Тип дома
бизнес-центр
Общее количество этажей в доме
13

«Парк Мира» - современный бизнес-центр, расположенный в непосредственной близости от Садового и Третьего транспортного кольца, на первой линии проспекта Мира, в пешей доступности от станции метро «Рижская». БЦ относится к классу «премиум» и занимает территорию, ранее принадлежавшую НПК «Импульс». Площадь территории – 3,5 гектара.

В структуру БЦ «Парк Мира» входит несколько зданий высотой от 2 до 13 этажей. Проект реализован в соответствии с принципами экологичности, и в отделке фасадов зданий использованы соответствующие материалы – натуральное дерево, камень, качественный клинкерный кирпич. В декоре фасадов использованы элементы витражного, панорамного остекления, планировкой предусмотрены летние террасы, эксплуатируемая кровля.

В БЦ «Парк Мира» можно приобрести или арендовать офисы площадью от 30 м2, а также двухуровневые офисы, блоки с террасами и отдельные здания с эксплуатируемой кровлей. Предлагаются помещения как с выполненным ремонтом, так и под отделку. Высота потолков в помещениях – от 3 до 11 м.

Для парковки транспорта в БЦ «Парк Мира» предусмотрена наземная стоянка на 360 автомобилей, подземный паркинг. Внутренняя территория бизнес-центра обустроена как ландшафтный парк с открытым кинозалом, скамейками, прогулочными дорожками. Инфраструктура БЦ включает такие объекты, как продуктовые магазины, торговые галереи, кофейни и кафе, медицинский центр, reception, салон красоты.
Развернуть Свернуть

Описание объекта

Аренда торгового помещения формата Street Retail на 1 этаже бизнес-центра "Парк Мира"

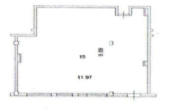
Помещение общей площадью 142 кв.м, 2 отдельных входа, витринные окна, подсобные помещения

110 кв.м - 3 изолированные рабочие зоны + комната для персонала

32 кв.м - подсобные помещения - келлеры

ЛОКАЦИЯ:

- Шаговая доступность до двух станций метро

- Собственная инфраструктура

- Гостевой паркинг

- Свободный доступ на территорию

КОММЕРЧЕСКИЕ УСЛОВИЯ:

- УСН

- Юридический адрес

- Долгосрочный договор аренды
Развернуть Свернуть

Парк Мира
Добавить в избранное Убрать из избранного
  • Продажа
  • Офис
  • 77.7 м2
  • 2 этаж
Добавить в избранное Убрать из избранного
  • Аренда
  • Офис
  • 517.8 м2
  • 3 этаж
Добавить в избранное Убрать из избранного
  • Аренда
  • Офис
  • 336 м2
  • 3 этаж
Похожие объекты
Добавить в избранное Убрать из избранного
  • Аренда
  • Склад / Производство
  • 451.9 м2
  • -1 этаж
На карте