Получить подборку
addressagentbrickscarceilingcitydcdistrictdolldooreurfbfloorfloorsgoogle-plushouseinstagramkeyliftlistmarkermessagemetronaturenewbuidingnewbuiltSE_icons_Noparkingphoneplanrenovrouterubsearchshopstairsstar-emptystar-fillsummsurveilancesymbol-defstagthumbtwvkwalkwallsSE_icons_windowyoutubelist-2

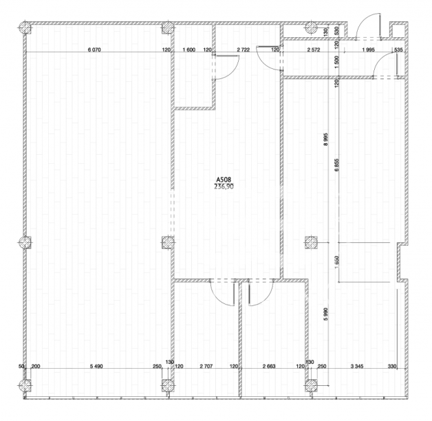
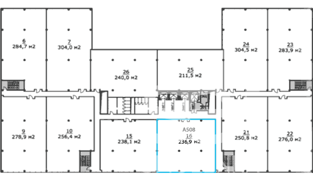
Аренда офиса, площадь 236.9 кв.м., 5 этаж, Очаковское ш, 34, район Очаково-Матвеевское

Название ТЦ/БЦ
West Park
Год постройки
1990
Тип дома
бизнес-центр
Общее количество этажей в доме
8
Охрана/сигнализация
да
Описание объекта

Аренда офиса общей площадью 236,9 кв.м на 5 этаже Бизнес-центра "Вест Парк"

Планировка: три открытых планировки рабочего зала, два кабинета, кофепоинт

Коммуникации: канальное кондиционирование, приточной-вытяжная вентиляция, светодиодное освещение, СКУД

Отделка: потолок - алюминиевые панели; стены - ламинированные панели МДФ; пол - стяжка, ламинат

Эксплуатация: 2210 ₽ за 1 кв.м в год (43 629 ₽ в месяц), НДС

Коммуналка: ~1280 ₽ за 1 кв.м в год (25 270 ₽ в месяц), НДС

Интернет: ~10000 ₽ за 10 Мбит/с ежемесячно, УСН

Паркинг: 10000 ₽ за 1 м/м в месяц, НДС

На территории делового центра организован наземный паркинг на 400 машиномест, прогулочная зона с ландшафтным дизайном и пешеходными дорожками.

Для въезда на территорию бизнес-центра Вест Парк организован КПП с возможностью гостевого паркинга за 100 ₽ в час

Между БЦ  WEST PARK и ст.м. Славянский бульвар регулярно курсирует трансфер для сотрудников. Перевозчиком выступает профессиональная транспортная компания.

Бизнес-центр имеет пешую доступность до станции МЦД Очаково и до остановки общественного транспорта по направлению к ст.м. Озёрная
Развернуть Свернуть

West Park
Добавить в избранное Убрать из избранного
  • Продажа
  • Офис
  • 236.9 м2
  • 5 этаж
На карте