Получить подборку
addressagentbrickscarceilingcitydcdistrictdolldooreurfbfloorfloorsgoogle-plushouseinstagramkeyliftlistmarkermessagemetronaturenewbuidingnewbuiltSE_icons_Noparkingphoneplanrenovrouterubsearchshopstairsstar-emptystar-fillsummsurveilancesymbol-defstagthumbtwvkwalkwallsSE_icons_windowyoutubelist-2

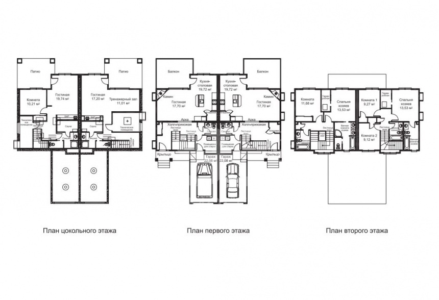
Продажа дома, площадь 228 кв.м., КП Новые Вешки, Алтуфьевское, пл. уч. 5.46 сот

Название КП
Материал стен
Кирпичный
Общее количество этажей в доме
2

Коттеджный поселок «Новые Вешки» расположен всего в 1,5 км от Москвы, добраться до него можно по Алтуфьевскому шоссе. Великолепная транспортная доступность делает поселок идеальным для круглогодичного проживания. Он находится в окружении живописной подмосковной природы, рядом с водохранилищами, объектами развитой инфраструктуры.

Общая территория поселка составляет 70 гектаров. Проект застройки «Новых Вешек» разработан и реализован при участии специалистов из Канады. Поселок застроен современным, высокотехнологичным жильем, в котором обеспечивается идеальный микроклимат. В основе концепции застройки – 16 проектов с возможностью выбора декора фасадов, вариантов планировки коттеджей. По тщательно разработанным проектам велись и работы по дизайну интерьера. В поселке представлены не только коттеджи, но и таунхаусы. Всего на его территории насчитывается порядка 500 участков.

Поселок «Новые Вешки» соответствует самым современным стандартам и отвечает всем требованиям, которые обычно предъявляются к качеству загородного жилья, безопасности проживания. Территория поселка огорожена, находится под охраной, въезд осуществляется через КПП.

Развернуть Свернуть

Описание объекта

Вашему вниманию предлагается дом 228 кв.м в КП Новые Вешки, расположенном всего в 2 км от Москвы. Ближайшее метро в 2,7 км. Проект Эшвуд вариант "дуплекса", архитектура которого продумана в едином стиле, он смотрится как один большой красивый дом. В распоряжении жителей "Новых Вешек" не только инфраструктура Москвы, которая доступна благодаря уникальному расположению комплекса, но и все необходимые объекты инфраструктуры, расположенные в самом комплексе и рядом с ним. На территории комплекса функционирует Международная гимназия, детский сад, ясли, а также детские и спортивные площадки, баскетбольное поле, каток, теннисные корты, футбольное поле и небольшие парки. В ближайшее время на закрытой охраняемой территории комплекса будут построены торговый комплекс и медицинский центр с полной сферой услуг. Развернуть Свернуть

Новые Вешки
Добавить в избранное Убрать из избранного
по запросу
  • Продажа
  • Дом
  • 440 м2
  • 8.4 сот
  • 2 км
  • Алтуфьевское
Добавить в избранное Убрать из избранного
по запросу
  • Продажа
  • Дом
  • 331 м2
  • 7.54 сот
  • 2 км
  • Алтуфьевское
Добавить в избранное Убрать из избранного
по запросу
  • Продажа
  • Дом
  • 414 м2
  • 7.68 сот
  • 2 км
  • Алтуфьевское
Похожие объекты
Добавить в избранное Убрать из избранного
по запросу
65,000,000 ₽
  • Продажа
  • Участок
  • 43.43 сот
  • 24 км
  • Новорижское
Добавить в избранное Убрать из избранного
  • Продажа
  • Дом
  • 390 м2
  • 12 сот
  • 18 км
  • Рублево-Успенское
Добавить в избранное Убрать из избранного
по запросу
  • Продажа
  • Дом
  • 357 м2
  • 6 Комнат
  • 12 сот
  • 25 км
  • Рублево-Успенское
Добавить в избранное Убрать из избранного
  • Продажа
  • Дом
  • 825 м2
  • 20 сот
  • 14 км
  • Рублево-Успенское
Добавить в избранное Убрать из избранного
по запросу
  • Продажа
  • Дом
  • 366.6 м2
  • 18 сот
  • 21 км
  • Рублево-Успенское
Добавить в избранное Убрать из избранного
по запросу
  • Продажа
  • Таунхаус
  • 464 м2
  • 7 сот
  • 12 км
  • Ильинское
Добавить в избранное Убрать из избранного
по запросу
  • Продажа
  • Таунхаус
  • 204 м2
  • 2 сот
  • 18 км
  • Рублево-Успенское
Добавить в избранное Убрать из избранного
по запросу
  • Продажа
  • Участок
  • 26 сот
  • 16 км
  • Новорижское
На карте