Получить подборку
addressagentbrickscarceilingcitydcdistrictdolldooreurfbfloorfloorsgoogle-plushouseinstagramkeyliftlistmarkermessagemetronaturenewbuidingnewbuiltSE_icons_Noparkingphoneplanrenovrouterubsearchshopstairsstar-emptystar-fillsummsurveilancesymbol-defstagthumbtwvkwalkwallsSE_icons_windowyoutubelist-2

Аренда помещения свободного назначения, площадь 761 кв.м., 1 этаж, Коновалова ул, 14, район Рязанский

Тип дома
ОСЗ / особняк
Общее количество этажей в доме
2
Описание объекта

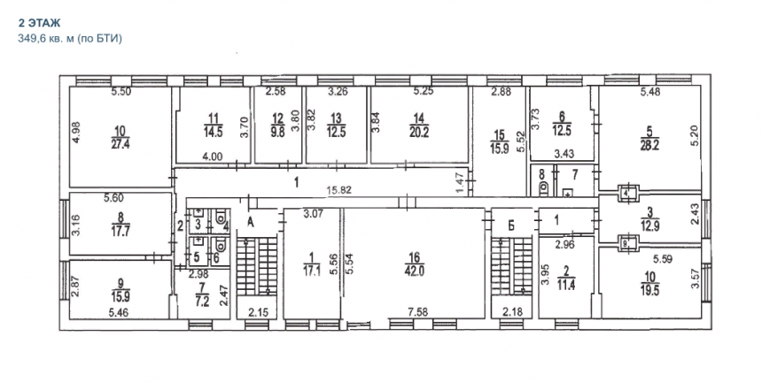
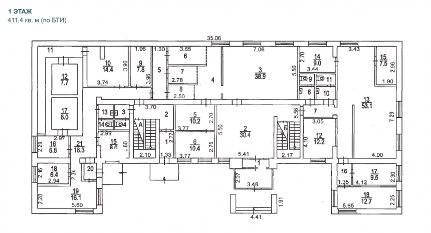
Вашему вниманию предлагается 2-х этажный особняк. Общая площадь - 761 кв.м. Придомовой участок, простирающийся на 1082 квадратных метра, огорожен по периметру и охраняется. В качестве перекрытий здания установлены железобетонные плиты, а стены сооружены из высококачественного кирпича. Внутренние помещения отремонтированы. Системы контроля доступа и видеонаблюдения. Все центральные коммуникации. Системы общеобменной вентиляции и кондиционирования. Наземный паркинг на 30 м/м. Имеется 2-х этажная временная пристройка - 167,4 кв.м. Кабинетная планировка. Высота потолка - 3 м. Электрическая мощность - 50 кВт. Коммуникации: Интернет / Телефония. Круглосуточный доступ. 3 отдельных входа. Размещение здания позволяет максимально быстро добраться до главных транспортных артерий столицы: к ТТК, шоссе Энтузиастов, Рязанскому проспекту и МКАДу. Особняк находится всего в пяти минутах ходьбы от станции московского метрополитена Рязанский Проспект. Развернуть Свернуть

Похожие объекты
Добавить в избранное Убрать из избранного
  • Аренда
  • Офис
  • 192 м2
  • 5 этаж
На карте