Получить подборку
addressagentbrickscarceilingcitydcdistrictdolldooreurfbfloorfloorsgoogle-plushouseinstagramkeyliftlistmarkermessagemetronaturenewbuidingnewbuiltSE_icons_Noparkingphoneplanrenovrouterubsearchshopstairsstar-emptystar-fillsummsurveilancesymbol-defstagthumbtwvkwalkwallsSE_icons_windowyoutubelist-2

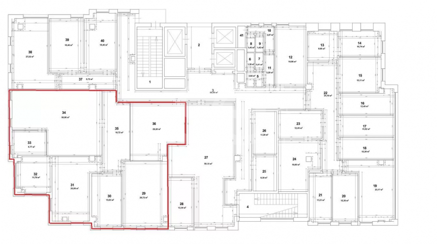
Аренда офиса, площадь 192 кв.м., 5 этаж, Рязанский пр-кт, 24, район Рязанский

Название ТЦ/БЦ
Центр Юнион
Тип дома
бизнес-центр
Общее количество этажей в доме
16
Охрана/сигнализация
да
Описание объекта

Аренда офиса Бизнес центр "Юнион".

Эксплуатационные расходы включены.

Отдельно оплачиваются: электроэнергия, телефония, интернет.

Подземный паркинг: коэффициент 1:100, стоимость - 14 000 руб. за м/м в месяц.

Бизнес-центр «Юнион» представляет собой 16-этажное здание, расположенное на Рязанском проспекте (ЮВАО).

Здание Бизнес-центра построено в 2006 году по проекту архитектора В. Филатова. Центр оснащен всем необходимым для ведения успешного бизнеса.

Удобная транспортная доступность, рядом пролегают Лермонтовский и Волгоградский проспекты. Расстояние до МКАД — четыре километра, до Третьего транспортного кольца — чуть больше пяти километров. Шаговая доступность до ст. метро Окская. Рядом с Бизнес-центром остановки общественного транспорта.

Развернуть Свернуть

Похожие объекты
Добавить в избранное Убрать из избранного
  • Аренда
  • ПСН
  • 761 м2
  • 1 этаж
На карте